Makléř: Vošmík Petr
Telefon: 420 607 ...
E-mail: dreampr ...
Zobrazit celý kontaktTelefon: 420 607 000 021
E-mail: dreampraha@century21.cz
Nemovitost nabízí
CENTURY 21 Dream
Radlická 759/32, 120 00 Praha 2
www.century21.cz/kancelar-dream-247
Zobrazit kontakt na RK
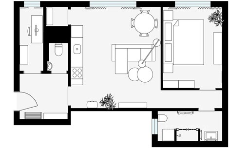
Prodej bytu 3+kk, Kladno - centrum Hledáte ideální bydlení pro pár či menší rodinu, případně zajímavou investici? Nabízíme světlý byt s praktickou dispozicí ve 3. patře cihlového domu bez výtahu v samotném centru Kladna. Byt zaujme především příjemnou atmosférou, dostatkem světla a jihozápadní orientací s výhledem do klidného, uzavřeného vnitrobloku určeného pouze pro obyvatele domu. Dispozice je řešena velmi účelně - dominantou je prostorný obývací pokoj s kuchyňským koutem a praktickou spíží. Ložnice nabízí dostatek místa pro vestavěné skříně a třetí pokoj lze využít jako pracovnu, dětský pokoj či šatnu. Velkým benefitem jsou dvě samostatné toalety a prostorná koupelna, což výrazně zvyšuje komfort každodenního bydlení. Dům se nachází v centru města s výbornou dopravní dostupností - zastávky s přímým spojením do Prahy jsou vzdálené pouhých 200 metrů a spoje jezdí v krátkých intervalech. V docházkové vzdálenosti je kompletní občanská vybavenost - obchody, restaurace, školy i školky. Milovníci aktivního životního stylu ocení blízkost lesoparku, sportovišť a kladenského údolí, kam se dostanete přibližně do 10 minut chůze. Byt představuje skvělou kombinaci komfortního bydlení, klidného prostředí a výborné dostupnosti. Pro více informací nebo domluvení prohlídky nás neváhejte kontaktovat.
Prodej, Byt 3+kk, Kladno
Nadstandardní bydlení v projektu PORTTI - moderní družstevní byt 3+kk s garážovým stáním a balkonem v klidné části Kladna Nabízím k prodeji…
Prodej bytu 3+kk, 159 m2, Kladno, ul. Ke křížku
K prodeji moderní byt 3+kk o podlahové ploše 86 m2 s terasou orientovanou na 3 světové strany o výměře 73 m2, v novém rezidenčním projektu ICON Park…