Makléř: Ing. Marek Kotík
Telefon: 722 222 ...
E-mail: marek.k ...
Zobrazit celý kontaktTelefon: 722 222 228
E-mail: marek.kotik@qara.cz
Nemovitost nabízí
QARA s.r.o.
Šafaříkova 201/17, 120 00 Praha 2
Zobrazit kontakt na RK
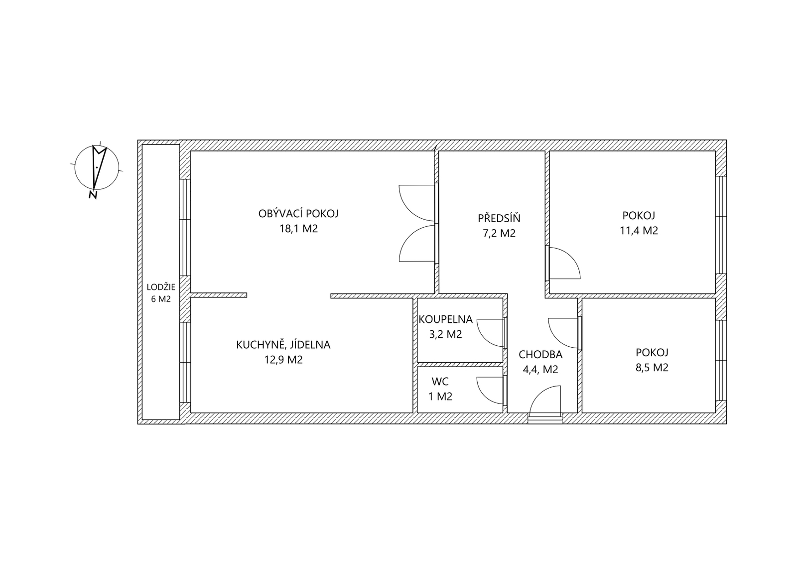
Nabízíme ke prodeji byt o dispozici 3+1 v Italské ulici v Kladně, o celkové ploše 74 m2 včetně lodžie o velikosti 6 m2 a komory 1 m2. Byt se nachází ve 4. patře panelového domu a nabízí praktické uspořádání i příjemnou orientaci. Lodžie je vedena přes obývací pokoj a kuchyni a je orientována na jihovýchod, což zajišťuje dostatek denního světla, zatímco dvě ložnice směřují na severozápad a poskytují klidné zázemí. V bytě jsou plastová okna se žaluziemi a v předsíni se nachází vestavěná skříň. Bytové jádro je nové, provedené ze sádrokartonu, včetně rozvodů, jinak je jednotka v původním stavu, což nabízí možnost rekonstrukce dle vlastních představ. Na podlahách jsou lino a koberce. Kuchyň je vybavena bílou lesklou kuchyňskou linkou. K bytu náleží praktická komora umístěná na patře a sklepní kóje. Dům prošel kompletní revitalizací, která zahrnovala nový výtah, výměnu všech rozvodů, nový vstup do domu, zateplení fasády i střechy a instalaci nových plastových oken, což přináší vyšší komfort i energetickou úsporu. Lokalita patří mezi velmi vyhledávané díky kompletní občanské vybavenosti a výborné dopravní dostupnosti. Přímo za domem se nachází Kaufland a McDonald’s, v okolí jsou dále školy, školky, Tesco, Lidl, zastávky MHD i cyklostezka. Výhodou je také rychlá dostupnost vlakového i autobusového spojení a pohodlné napojení směrem na Prahu. Byt je vhodný jak pro rodinné bydlení, tak jako investiční příležitost díky lokalitě, dispozici a stavu domu po revitalizaci
Prodej bytu 3+1, 64 m2, Kladno, ul. Ústecká
Nabízíme k prodeji byt o dispozici 3+1 s celkovou plochou 64 m2, který se nachází v 7. patře zatepleného panelového domu s výtahem v ulici Ústecká, v…
Prodej bytu 3+1/L, 71m2, Kladno - Kročehlavy, ulice Obránců míru
Nabízíme k prodeji světlý byt o dispozici 3+1 (67m2) s lodžií (4m2), který se nachází ve 3. nadzemním podlaží panelového domu s výtahem v ulici…