Makléř: Jiří Šimon nájem
Telefon: 737 447 ...
E-mail: najem@j ...
Zobrazit celý kontaktTelefon: 737 447 189
E-mail: najem@jirisimon.cz
Nemovitost nabízí
ORANGE PROPERTY s.r.o.
Kaprova 42/14, Praha
Zobrazit kontakt na RK
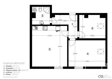
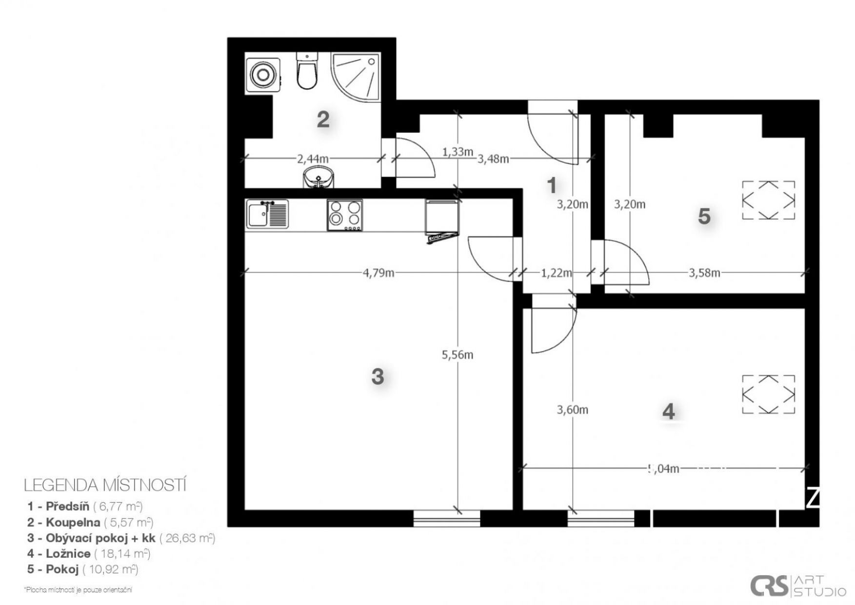
Nabízíme vám v dlouhodobému pronájmu byt s dispozicí 3+kk a výměrou 70 m2 v obci Nová Ves (Praha-východ). Byt se nachází v prvním patře a je úplně nový. V bytě ještě nikdo nebydlel a budete jeho první nájemníci. Tento byt obsahuje velký obývací pokoj s kuchyňským koutem, dvě ložnice, koupelnu s wc. Jedná se o moderní byt. K bytu patří jedno parkovací místo před domem. Nájemné je 19.000,- Kč / měsíčně + zálohy na 5.120,- zálohy na energie a služby (z toho je 1000,-/měs. voda, 2500,- topení, 20,-/měs. elektřina v domě, 100,-/měs. na osobu za odvoz odpadků, 1000,- /měs. elektřina v bytě). V bytě je topení vyřešeno radiátory s centrálním vytápěním a ohřev teplé vody elektrickým bojlerem. V bytě kompletně vybavená kuchyňská linka a koupelna, tak jak je vyobrazeno na fotografiích. Jinak je byt prázdný. Při nastěhování se platí 24.120,- nájemné na první měsíc + 24.120,- kauce + 24.120,- provize. <a href="https://www.eurobydleni.cz/byty/3_1/praha-4/obec-michle/pronajem/"><strong>Pronájem bytu 3+1 Praha 4, Michle</strong></a>
Pronájem, Byt 3+kk, Nová Ves
Nabízíme vám v dlouhodobému pronájmu byt s dispozicí 3+kk a výměrou 70 m2 v obci Nová Ves (Praha-východ). Byt se nachází v prvním patře a je úplně…
Pronájem bytu 3+kk Nová Ves na Eurobydleni.cz