Makléř: Jana Zahajská
Telefon: 725 486 ...
E-mail: jzahajs ...
Zobrazit celý kontaktTelefon: 725 486 372
E-mail: jzahajska@seznam.cz
Nemovitost nabízí
Soukromá inzerce z DBP.cz
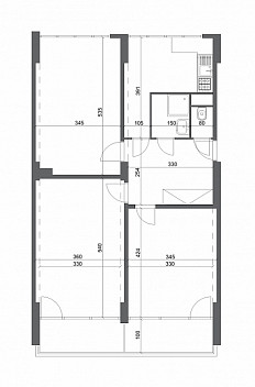
Velký byt 3+1 se nachází na sídlišti v Kolíně II, ul. Na Magistrále. Panelový dům čp. 798, 799 má 12 poschodí, zděné jádro. Prodávaná bytová jednotka je ve středové části 7. podlaží. Byt bez 2 lodžií je podlahovou plochou 75 metrový . Dispozice místností bytu: 3 pokoje, kuchyně, koupelna, předsíň, záchod, 2 lodžie a sklep. Při nedávné rekonstrukci byla vyměněna linka, koupelna,, záchod, dveře, podlahové krytiny, zabudovaná šatní skříň ve velké předsíni. Každý vchod má 2 výtahy. Vstup od parkoviště je bezbariérový až k výtahu. V suterénu je společná kolárna, sklepní kóje a další prostory, se kterými, včetně vlastního pozemku pod budovou, hospodaří výbor SVJ sdružující 84 bytů. Dům je zateplený, okna a výtahy vyměněné. V budově je možné se napojit na anténu, kabelový nebo vzdušný internet. Na jaře byl zpracován průkaz energetické náročnosti budovy, který bytový dům posunul do druhé nejúspornější klasifikační třídy ze 7, to je B - velmi úsporná. V těsné blízkosti z boku budovy je autobusová zastávka zdarma provozované městské hromadné dopravy. Mezi zastávkou a budovou vede nová cyklostezka a chodník. Odstavování vozidel je zdarma na přilehlém zánovním parkovišti a dalším veřejném prostranství v okolí. Na blízku kompletní občanské vybavení. Byt je volný, vyklizený.
Byt, 3+1, prodej, Havelcova, Kolín III, Kolín
Na základě výhradní spolupráce Vám nabízím k prodeji bytovou jednotku o velikostí 3+1 s komorou o velikosti 93,3m2 v blízkosti historického centra…
Prodej bytu 3+1 107 m2
Ve výhradním zastoupení Vám nabízíme zcela vyjímečný, prostorný byt s dispozicí 3+1 o rozloze 106,93 m2 v klidné lokalitě Kolína IV, na rohu ulice…