Makléř: Hubáček Karel
Telefon: 420 602 ...
E-mail: karel.h ...
Zobrazit celý kontaktTelefon: 420 602 278 512
E-mail: karel.hubacek@century21.cz
Nemovitost nabízí
CENTURY 21 Premium
Zlatnická 1582/10, 110 00 Praha 1
www.century21.cz/kancelar/premium/
Zobrazit kontakt na RK603 892 407
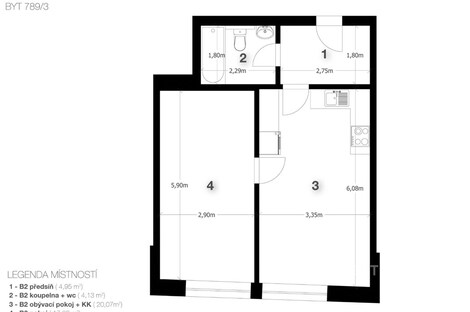
V zastoupení nabízíme k prodeji nadstandardní byt o dispozici 2+kk o užitné ploše 49 m2 (byt 46m2 + sklep 3m2), který vzniká v rámci prestižního developerského projektu v bezprostřední blízkosti Staroboleslavské brány. Byt je součástí moderní novostavby s plánovaným dokončením v roce 2026. Dispozice zahrnuje sklep o výměře 3m2. Byt bude částečně zařízený a jeho dispozice je navržena s maximálním důrazem na pohodlí i funkčnost. Ohřev vody a vytápění bytu zajišťuje moderní tepelné čerpadlo značky NIBE. Projekt spojuje moderní architekturu s respektem k historickému okolí a nabízí tak jedinečnou možnost prémiového bydlení v jedné z nejatraktivnějších částí Brandýsa nad Labem-Staré Boleslavi. Lokalita poskytuje klidné prostředí s atmosférou historického centra a zároveň plnou občanskou vybavenost - školy, restaurace, kulturní památky i snadnou dostupnost do Prahy. Tato nemovitost představuje výjimečnou investici do budoucna při hledání moderního bydlení v exkluzivní lokalitě.
Prodej bytu 2+kk, Brandýs nad Labem Stará Boleslav
Ve výhradním zastoupení nabízíme k prodeji nadstandardní byt o dispozici 2+kk o užitné ploše 69m2 (byt 58 m2 + terasa 9m2 + sklep 3m2), který vzniká…
Prodej bytu 2+kk, 51 m2, Brandýs nad Labem, ul. Dřevčická
!!Jedinečná nabídka jen pro prvních 15 bytů sleva 3% z kupní ceny!! Rezidence Na Mariánské cestě je ideálním místem pro rodiny s dětmi, páry,…