Makléř: Jitka Lišková
Telefon: 602 611 ...
E-mail: liskova ...
Zobrazit celý kontaktTelefon: 602 611 876
E-mail: liskova@domov-beroun.cz
Nemovitost nabízí
Domov - realitní kancelář s.r.o.
Na Příkopě 1/6, 26601 Beroun
Zobrazit kontakt na RK311 623 447
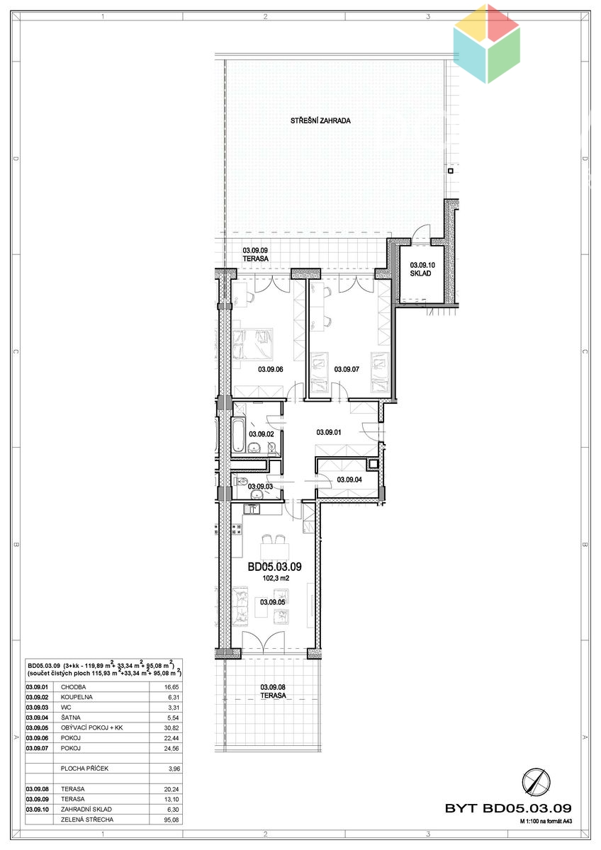
Máme pro Vás k prodeji nový byt 3+kk o luxusní výměře 115 m2. Nad ostatními nabídkami vyniká tím, že má střešní zahradu o výměře 95 m2, dvě terasy (20,2 m2 a 13,1 m2) a dokonce zahradní zděný sklad (6,3 m2). A pozor - v ceně je už zahrnuta sklepní koje a také garážové stání v suterénu domu. Tento jedinečný byt s výhodami rodinného domu je těsně před dokončením v novém bytovém domě v ul. Nepilova v Berouně. Kolaudace domu je plánována na konec tohoto roku. Fotografie bytu jsou aktuální, už je položena podlaha, která se lištuje, budou osazeny dveře a zařizovací předměty v koupelnách. I dům zvenku dostává nová "kabát", bude osazený ocelovými tyčemi, které kromě originálního vzhledu zajistí ohraničení garáží. Doplní se zábradlí, oddělení teras, dokončuje se fasáda a upravuje okolí domu. Architekt byt navrhl na celou šířku domu, získáte tím terasu orientovanou na severozápad a druhou na jihovýchod, můžete si tak svobodně vybírat, jestli se chcete slunit nebo skrýt do stínu. Obzvláště jižní terasa je velmi slunečná a soukromí zajišťuje horní balkon, který terasu částečně kryje. Plocha bytu je rozvržena velmi prakticky, v bytě je prostorná chodba, samozřejmostí je šatna, koupelna s toaletou i druhý samostatný záchod. Obě ložnice jsou velmi světlé, s velkými francouzskými okny, mají vstup na terasu a střešní zahradu. Obývací pokoj s kuchyňským koutem má svoji vlastní terasu. Tento typ bytu - se střešní zahradou - je v projektu už poslední. Byt najdete na 3. NP z celkem 5 NP, dům bude bezbariérový, s výtahem, kterým si do svého patra vyjedete přímo z garáží. Tam na Vás čeká vlastní parkovací místo. K nastěhování budou byty připraveny začátkem příštího roku. Financování je v tomto projektu velmi proklientské - největší část kupní ceny (70%) zaplatíte až po kolaudaci. S financováním Vám pomůže náš hypoteční specialista. Lokalita "Na Máchovně" je v Berouně velmi oblíbená mladými rodinami. Obchody jsou v pěší vzdálenosti, kousek to máte na autobus MHD i s přímými spoji do Prahy, nájezd na dálnici Praha-Plzeň je 1,5 km daleko, nedaleko je nové koupaliště, velké sportovní centrum Eden, do historického centra města je to procházkou do 20 minut. Nedaleko jsou i mateřské a základní školy, Beroun má skvělou občanskou vybavenost. Přímo v lokalitě se staví státní školka, jsou tu hned dvě dětská hřiště, obchody, i přírodu máte nadosah - z oken se díváte na zelené kopce ohraničující bytovou zástavbu.
Prodej bytu 3+kk s dvěma terasami a garážovým stáním Beroun
Zprostředkujeme prodej bytu o dispozici 3+kk s výměrou 115,35 m2 a dvěma terasami 71,50 m2 v žádané lokalitě v Berouně "Na Máchovně", s jehož…
Prodej, Byt 3+kk, Beroun
Máme pro vás skvělou nabídku - moderní byt 3+kk s nadstandardní výměrou 115,35 m2 a dvěma terasami. Tento luxusní byt vznikne v klidné části města…