Makléř: Ing. Jíří Šíma
Telefon: 733 149 ...
E-mail: sima@du ...
Zobrazit celý kontaktTelefon: 733 149 048, 733 149 048
E-mail: sima@dumrealit.cz
Nemovitost nabízí
Dumrealit.cz
Svornosti 8, 150 00 Praha 5
Zobrazit kontakt na RK
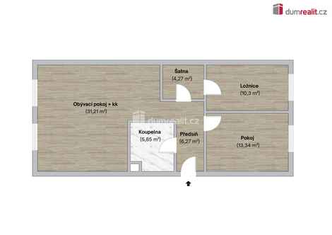
Nabízím k možnému prodeji družstevní byt 3+1 o celkové velikosti 76,16 m2 včetně sklepní kóje ca 2 m2. Dům prošel revitalizací, je zateplen, okna jsou plastová. Byt je umístěný ve 4. NP v domě s výtahem. Lokalita je klidná s dostatkem parkovacího místa před domem. Navíc právě probíhá výstavba parkovacího domu, který bude vzdálen cca 350 m od domu. Byt prošel originální přestavbou s osobitým vkusem na interiér. Stěny jsou opatřeny sádrokartonem se zvukovou izolací. Kuchyně byla propojena s obývacím pokojem a doplněna o barový pult. Prostorná chodba spojuje všechny pokoje včetně šatny o velikosti cca 4,2 m2, která je průchozí do ložnice. Prostorná koupelna nabízí vanu i sprchový kout. Dále pak samostatný pokoj o velikosti cca 13 m2 spolu s obývacím pokojem a kuchyní o velikosti cca 32 m2 dokreslují kvalitu bytu. Obývací pokoj je navíc vybavený klimatizací. Aktuální výše záloh činí 4.732 Kč včetně fondu oprav ve výši 1.654 Kč. V blízkosti domu je autobusová i vlaková zastávka. Autem do Prahy cca 20 min. Základní škola je za domem, Gymnázium v docházkové vzdálenosti. Neratovice disponují kompletní občanskou vybaveností. Pro bližší informace volejte makléře. Ev. číslo: 652534. Energetický štítek: G
Družstevní byt 3+1, 68 m2, Neratovice
Nabízíme Vám exkluzivně k prodeji družstevní byt 3+1 v 1. patře (2. nadzemní podlaží) kompletně revitalizovaného panelového domu v Neratovicích. …
Prodej bytu 3+1, 68 m2, Neratovice, ul. Na Výsluní
Nabízíme k prodeji družstevní prostorný byt 3+1 o užitné ploše 68 m2 v Neratovicích. Tento panelový byt se nachází v 2. patře sedmipatrového domu na…